
面 積 | 188㎡
平面分析
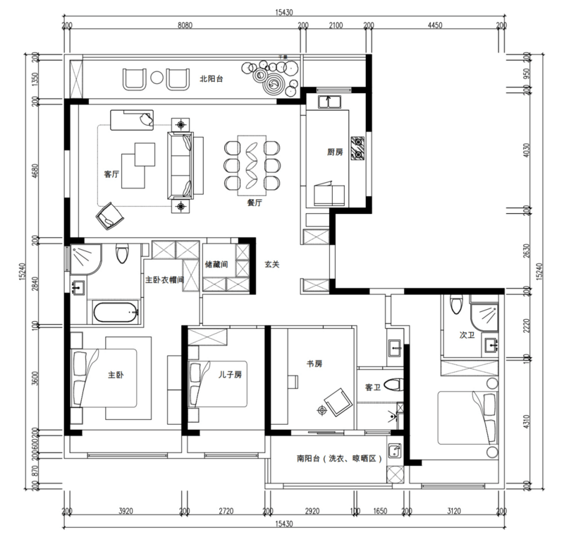
● 平面方案 Ⅰ ●

入戶預留的玄關區增加定制鞋帽柜,一邊可以作為換鞋區,增加換鞋凳,另一側主要用作收納。客餐廚空間朝北,所以采光和通風比較重要,客餐廳作開放式,呈橫廳設計,以沙發作為軟隔斷,將兩個空間區分開,廚房L型設計滿足基礎的烹飪需求,電器也足夠收納。
因為這個戶型南北都有陽臺所以南陽臺主要用作洗衣晾曬,北陽臺作為休閑區,種種鮮花綠植等。四個房間均朝南,保留其中三間臥室均帶有飄窗,居住起來比較舒適,兩間作臥室套房,一間為主臥,另一間可以作為長輩房,使用起來更加方便;兒子房靠近書房,臥室比較小,只做基礎的收納和滿足睡眠需求,學習主要在書房完成,提高空間的使用頻率。
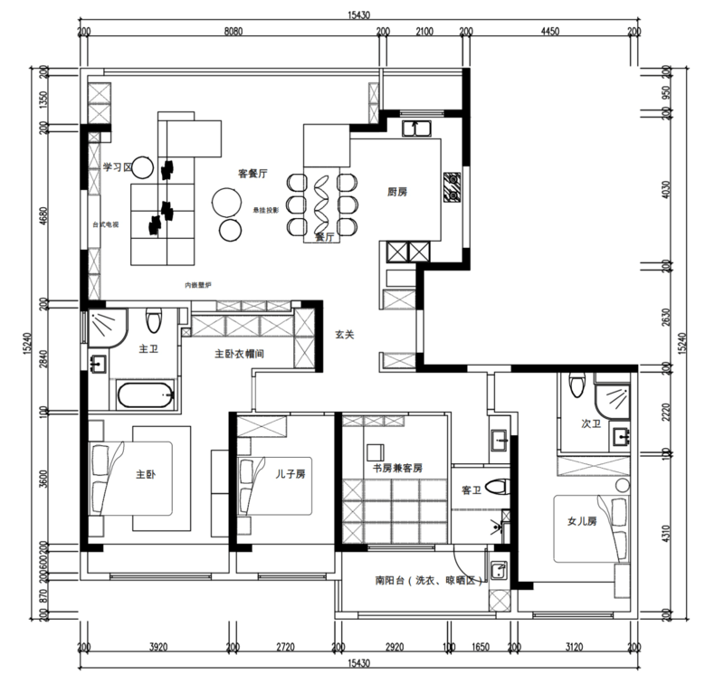
● 平面方案 Ⅱ ●

在第二個方案中,設計師將客餐廳與北陽臺打通,擴大可利用的空間,廚房也作開放式,增加了一些功能區。打破傳統的沙發形式,選擇組合式沙發結合學習區,利用懸掛式投影將客餐廳進行區分,廚房全開放式延伸出島臺式餐桌,既增加了可操作臺面,也提高了廚房的儲物收納性。
***稿中的書房作榻榻米組合式,既可以當做臨時客房,也可以解決二胎家庭的學習問題。
軟裝意向分析
● 玄關 ●

進門看見的是客廳,可以兩邊靠墻做頂天立地式收納柜,打造一個兼具美觀與實用的入戶空間,既能提升家的顏值,又能為家打造一個功能區。如果不考慮儲物,就可以用玻璃作為隔斷。玻璃隔斷不會影響室內采光,還有增加室內通透感的作用。
● 客廳 ●


餐客廚一體,讓空間效率變得更高,功能能夠重疊使用,如餐桌貼近廚房,餐桌可以作為備餐區,餐廳與客廳相融,餐椅也是客廳的“沙發”。
如果家人都愛看書,或者有小孩的家庭想要讓孩子養成讀書的習慣,那么閱讀式的客廳布局***適合。可以把電視背景墻打造成可以收納的書柜,全家不再是一味的守在電視旁,而是一起徜徉書海。
● 餐廳 ●

餐桌與廚房的櫥柜操作臺平行并列排布,一般適用于單排一字型廚房,空間結構比較規整,形式感強。
烹飪完畢直接上桌,減少廚房到餐廳行動的路線,既滿足路線短,節省時間,以及行動流暢方便的動線設計要求,極大的提高的廚房烹飪出餐的效率。
● 主臥 ●

主臥室帶有衛生間,可有效避免早晚搶衛生間高峰,家人間幸福指數也滿滿。以L型衣帽間作為過渡空間,有效利用入室空間增加收納,把有限的臥室空間,劃分動靜分區,不僅美觀大方,功能使用更大,把床尾處的空間作為梳妝區來使用。
主衛四分離,擁有了泡澡的快樂,以***短的家居動線實現舒適便捷。
● 兒童房 ●

兒童房的設計,除了要營造一種天真爛漫的氛圍外,還需要有休憩功能、學習功能和收納功能;采用一體化的定制形式,將衣柜、書柜、書桌做一體化定制,***大化利用空間的同時,滿足多重需求。
● 次臥 ●


次臥相比主臥要小很多,利用床頭墻面,打造收納+書柜一體化定制床頭柜。打造沉穩、淡雅、溫暖的感覺, 忌過冷、艷、暗、亮。
● 書房 ●

可以采用榻榻米的形式,集書桌柜于一體,兼容睡眠區、娛樂學習區、衣物收納等功能。顏值和實用兼具,擁有辦公的功能,另外當客人來訪時,又能變成臨時客臥,一舉多用,起到1+1>2的***功效。
或者只作為獨立書房時需要規劃足夠的收納空間,靠墻定制書桌+書柜,可容納多人使用,便于工作學習。開放式與封閉式并存的書柜,既可以擺放書籍,也可以擺放裝飾品。
● 陽臺 ●


南陽臺采光充足,柜子盡量到頂,有助于***大化存儲空間,洗衣機和烘干機疊放,旁邊設計一個水池,下面是收納柜。提供洗衣晾曬功能,功能齊全,簡單又實用。
北陽臺作休閑使用。綠植、休閑椅、小茶幾構建了一個小而精致的休閑角,是家中難得的放松空間。如果有好友登門也可來這里小坐,兩人喝喝茶、聊聊天,非常悠閑。